Reforma Integral en Tres Cantos
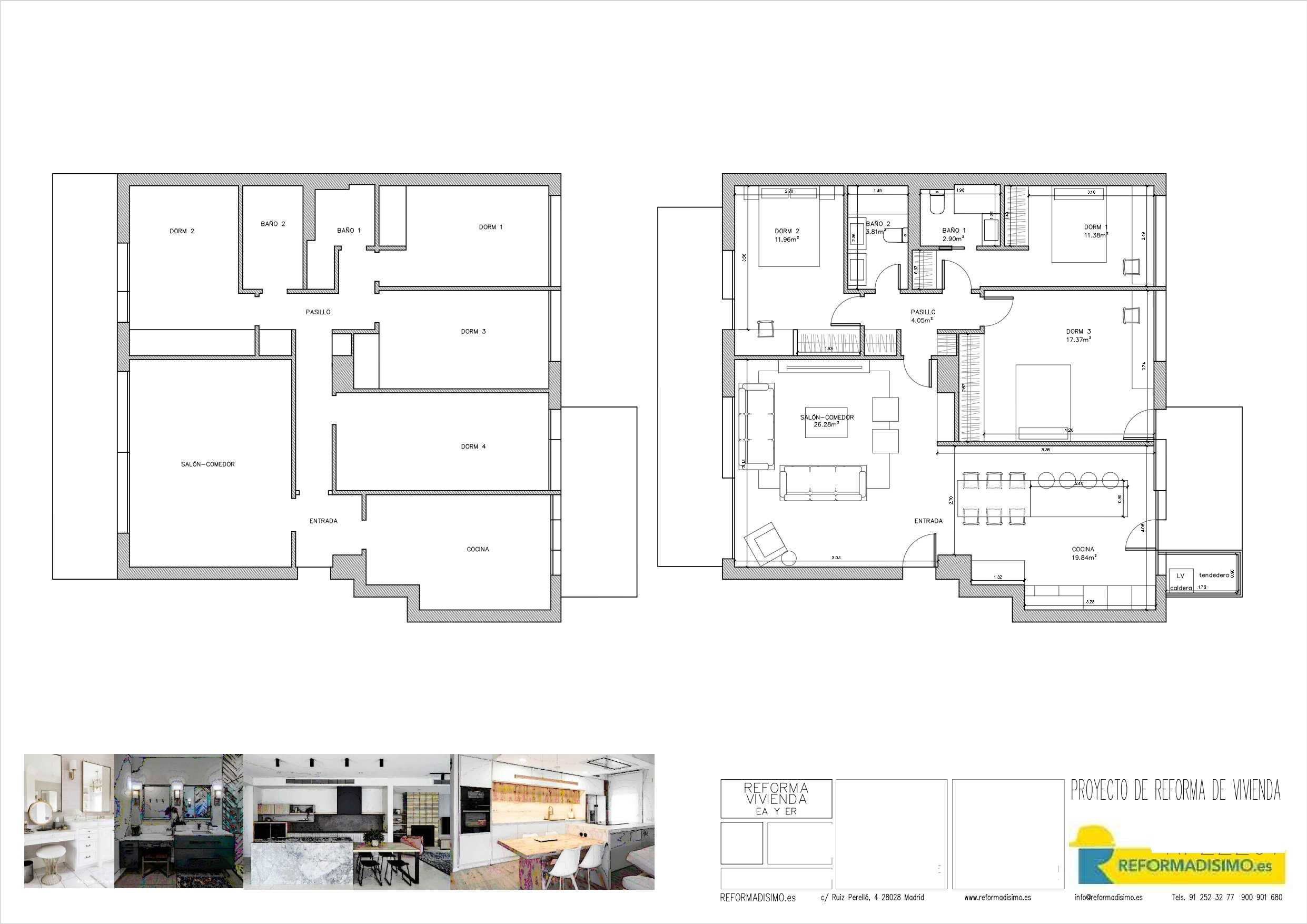
El destino de nuestra nueva reforma no es otro que el mismísimo centro de Tres Cantos. Allí nos encontramos con una casa muy espaciosa, cuyo potencial permanecía oculto. Para desvelarlo, llevamos a cabo una redistribución completa, ya que originalmente contaba con numerosas habitaciones en muy mal estado.
Fruto de esta redistribución, se ha creado un espacioso y espectacular salón-cocina que se conecta con las dos fachadas, permitiendo una generosa entrada de luz natural. Además reunificando habitaciones hemos diseñado tres impresionantes dormitorios, equipados con armarios espaciosos y personalizados según las preferencias del usuario.
El suelo en su totalidad está revestido de porcelánico con un acabado que imita la madera en tonalidades cercanas al nogal. Todas las ventanas son de PVC en color blanco, pero cabe destacar la puerta de acceso a la terraza, también de PVC, que incluye paneles de vidrio transparente para aprovechar al máximo la iluminación natural.
La cocina está equipada con muebles laminados en tono roble y cuenta con una encimera de granito negro. Los enchufes, visibles en negro, se complementan con elegantes electrodomésticos también negros. Además, la cocina se completa con una campana decorativa independiente, de color plata cromada. En el centro de la cocina, se encuentra una práctica isla con una mesa de comedor, creando un ambiente acogedor tanto para visitas como para la familia. La iluminación se logra mediante focos empotrados en el falso techo especialmente diseñado para este propósito.
Los armarios de toda la casa presentan un acabado laminado con puertas lisas lacadas en blanco.
En cuanto a los baños, siguen la paleta de colores predominante en el resto de la vivienda. Uno de ellos exhibe azulejos lisos en tono blanco marfil, de formato alargado en todas las paredes y contrastando en la zona de la ducha, azulejos rugosos del mismo color marfil.
El segundo baño muestra azulejos en tonos ocres, también lisos, y en la zona de la ducha se emplean azulejos del mismo tono, pero con vetas que imitan el mármol. En ambos baños, el suelo es gris, los platos de ducha son negros con griferías cromadas y los muebles con lavabo blanco, son de madera en tono roble, en consonancia con la estética de la cocina. Estos elementos comunes en los baños contribuyen a mantener una armonía cromática en toda la vivienda.
En resumen, estamos ante una renovación contemporánea que se adhiere rigurosamente a los principios del concepto abierto, logrando transformar una casa de dimensiones generosas en un espacio moderno y funcional
Vivienda de 110 m2
Finalización de Obra: Mayo 2023
Dirección: Tres Cantos, Madrid


